Appartamento in vendita a Fondi

In vendita
Appartamento
Fondi
89.700 €
Descrizione
(RIF. PID 961572)
ACQUISTO TRAMITE PARTECIPAZIONE ASTA GIUDIZIARIA
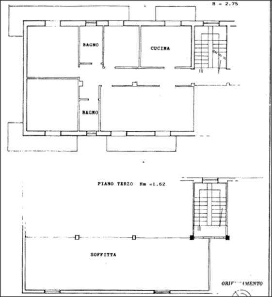
Fondi via S. Libertino Appartamento posto al secondo piano compreso in un edificio a tre livelli fuori terra serviti da un corpo scala comune, senza portierato e con corte esclusiva e relative pertinenze.
L'appartamento è attualmente occupato senza titolo, ha una superficie di taglio medio, un normale stato di conservazione, con un locale garage ed una corte esclusiva al piano terra - accessibile dalla corte comune.

➡️ Perché Comprare all'Asta?
Acquistare un immobile tramite asta giudiziaria permette di accedere a prezzi spesso inferiori rispetto al libero mercato. Il nostro team offre consulenza e assistenza completa per garantirti una partecipazione sicura e consapevole, dalla verifica dei documenti alla presentazione dell'offerta.
Contattaci immediatamente allo 0773489651 per:
1. Visionare la documentazione completa.
2. Ottenere una valutazione di fattibilità e un preventivo per l'assistenza.
3. Scoprire come finanziare il tuo acquisto in asta.

Prezzo base d'asta € 89.700,00
Offerta minima € 89.700,00
DATA VENDITA GENNAIO 2026
Caratteristiche principali
Codice:
PID 961572
Città:
Fondi
Categoria:
Appartamento
Locali:
7
Mq:
145
Classe energetica:
Non dichiarata
Mappa
VIA S. LIBERTINO - Fondi (LT)
Planimetrie
Richiedi informazioni
Invia
Cookie preference
Chatta con il
nostro assistente h24