Porzione di Casa in vendita a Aprilia

In vendita
Porzione di Casa
Aprilia
98.340 €
Descrizione
(RIF. ASTA 6223)
ACQUISTO TRAMITE PARTECIPAZIONE ASTA GIUDIZIARIA
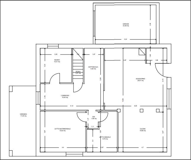
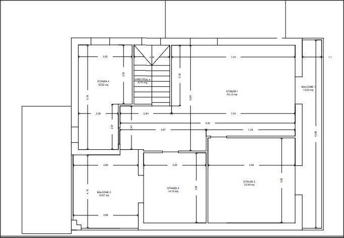
Aprilia via di Valle di Scalve Fabbricato per civile abitazione con struttura portante in muratura di blocchetti di calcestruzzo, di due piani fuori terra e con copertura composta da tetto a falde. Attualmente le opere strutturali sono ultimate e le sole finiture riguardano il solo piano terra. Il piano primo e' ad oggi realizzato a rustico. Il piano terra e' composto da ingresso/soggiorno con cucina a vista, accesso alla zona notte composta da camera da letto singola e camera matrimoniale e bagno. Tale piano risulta rifinito con camino in soggiorno, infissi interni ed esterni in legno e tinteggiature. Inoltre e' presente la scala di accesso al piano primo lasciata a rustico, come tutto il piano primo nel quale sono presenti le sole tramezzature interne, sempre a rustico e risultano mancanti gli infissi a eccezione di quelli di accesso al balcone consistenti in vecchi infissi in legno.
Garage di pertinenza annesso al villino composto da un piano fuori terra.
Prezzo base d'asta 131.118,00 €
Offerta minima 98.340,00 €
DATA VENDITA APRILE 2026

➡️ Perché Comprare all'Asta?
Acquistare un immobile tramite asta giudiziaria permette di accedere a prezzi spesso inferiori rispetto al libero mercato. Il nostro team offre consulenza e assistenza completa per garantirti una partecipazione sicura e consapevole, dalla verifica dei documenti alla presentazione dell'offerta.
Contattaci immediatamente allo 0773489651 per:
1. Visionare la documentazione completa.
2. Ottenere una valutazione di fattibilità e un preventivo per l'assistenza.
3. Scoprire come finanziare il tuo acquisto in asta.
Caratteristiche principali
Codice:
ASTA 6223
Città:
Aprilia
Categoria:
Porzione di Casa
Locali:
8,5
Mq:
300
Mq Box:
25
Classe energetica:
F
Mappa
VIA DI VALLE DI SCALVE - Aprilia (LT)
Richiedi informazioni
Invia
Cookie preference
Chatta con il
nostro assistente h24