Appartamento in vendita a Aprilia

In vendita
Appartamento
Aprilia
68.100 €
Descrizione
RIF. ASTA 6462
ACQUISTO TRAMITE PARTECIPAZIONE ASTA GIUDIZIARIA
Aprilia via dei Cinque Archi Appartamento ad uso residenziale sito al piano primo di un edificio isolato di complessivi tre piani.
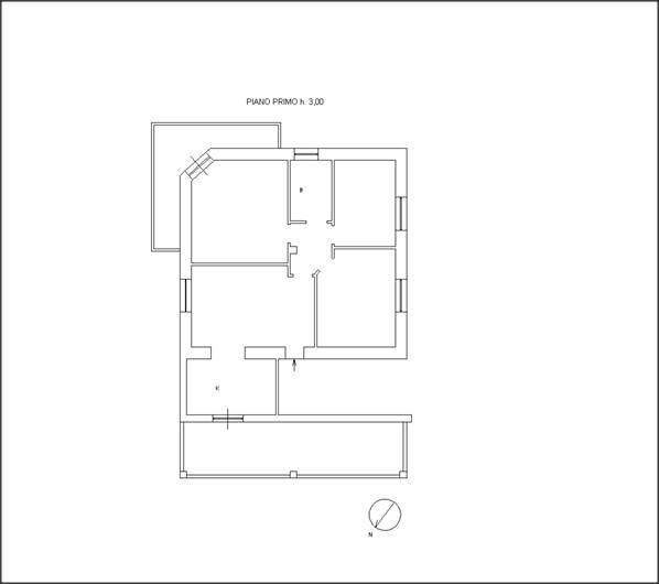
L'immobile occupa l'intero piano primo, ed è suddiviso in tre camere da letto, soggiorno, cucina, bagno, un balcone ed un terrazzo coperto. vi si accede tramite scala a servizio dell'intero edificio. Lo stato di conservazione è buono, la struttura portante è mista in muratura e cemento armato.
Prezzo base d'asta 90.800,00 €
Offerta minima 68.100,00 €
DATA VENDITA MAGGIO 2026
Caratteristiche principali
Codice:
ASTA 6462
Città:
Aprilia
Categoria:
Appartamento
Locali:
5
Mq:
96
Mq Balcone:
10
mq Terrazzo:
20
Piano:
1
Classe energetica:
F
Mappa
VIA DEI CINQUE ARCHI - Aprilia (LT)
Planimetrie
Richiedi informazioni
Invia
Cookie preference
Chatta con il
nostro assistente h24