Capannone in vendita a Sermoneta

In vendita
Capannone
Sermoneta
1.988.718 €
Descrizione
RIF ASTA6406

🏭 VENDITA ALL'ASTA: ECCELLENTE CAPANNONE INDUSTRIALE DI AMPIA METRATURA.
Opportunità unica per aziende di produzione: Immobile con enormi volumi e spazi logistici completi.
Capannone Industriale/Produttivo di mq totali 4.478,00 mq. Altezza Massima: 9,90 m (Altezza media: 8,00 m).
Zona industriale/produttiva consolidata, circondata da attività simili.
Il fabbricato è progettato per specifiche esigenze produttive e si sviluppa su un corpo principale a un piano, con una porzione accessoria su tre livelli fuori terra.
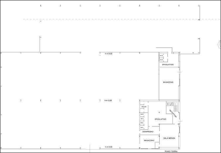
Piano Terra (Produzione e Logistica)
Area Produzione: 3.990,00 mq (lordi)
– Ideale per linee produttive di grandi dimensioni.
Servizi: 305,00 mq (lordi) destinati a magazzini, servizi igienici, spogliatoi e mensa.
Tettoie/Accessori: Tettoia adiacente (circa 91,50 mq) e tettoia specifica per ricovero forno (circa 91,50 mq). Piani Superiori (Uffici e Servizi).
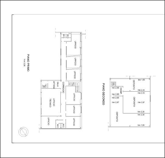
Piano Primo (Accesso con scala interna): Uffici direzionali e operativi con servizi igienici dedicati (305,00 mq lordi).
Piano Secondo (Accesso con scala a chiocciola): Spazi destinati a depositi e zona relax (201,00 mq lordi). Area Esterna e Pertinenze.
Corte Esclusiva: 2.938,00 mq adiacenti al capannone, destinati a spazio di manovra, carico/scarico merci e area verde.

Un Investimento Strategico per la Tua Attività.
Grazie ai suoi volumi eccezionali e alla sua configurazione completa (produzione, logistica, uffici e servizi), questo immobile rappresenta la soluzione ideale per aziende che cercano spazi ampi e funzionali in un contesto industriale affermato.
Caratteristiche principali
Codice:
ASTA6406
Città:
Sermoneta
Categoria:
Capannone
Locali:
2
Mq:
5158,84
Classe energetica:
Non applicabile
Mappa
VIA DELLA MECCANICA - Sermoneta (LT)
Richiedi informazioni
Invia
Cookie preference
Chatta con il
nostro assistente h24