Villetta schiera in vendita a Terracina

In vendita
Villetta schiera
Terracina (Borgo Hermada)
145.500 €
Descrizione
RIF ASTA6417

🏡 Opportunità UNICA - Villetta a Schiera all'Asta a Borgo Hermada (Terracina) 🚀
Non perdere l'occasione di acquistare la tua casa in una posizione strategica!
_____________________________________________________________
Dettagli Immobile
• Località: Terracina (LT), località Borgo Hermada
• Indirizzo: Via du Cros,
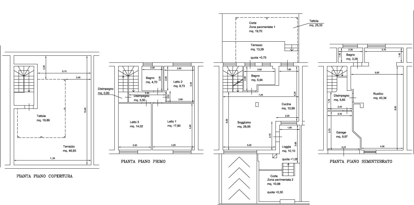
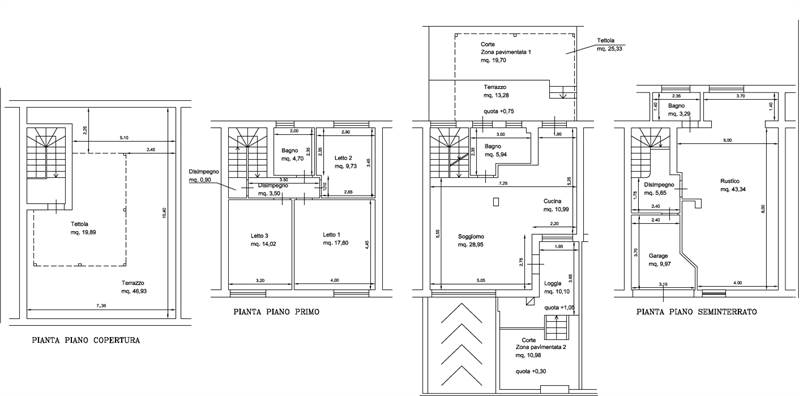
• Tipologia: Villino a schiera al piano S1, terra, primo e secondo.
• Stato: Vendita tramite Asta Giudiziaria.
Caratteristiche Principali
Questo spazioso villino a schiera offre una distribuzione ottimale degli spazi, ideale per una famiglia:
• Piano Terra: Luminoso soggiorno/pranzo con angolo cottura e un bagno di servizio.
• Piano Primo: Zona notte composta da tre camere da letto e un ulteriore bagno.
• Copertura: Terrazzo praticabile con vista, perfetto per momenti di relax.
• Piano Seminterrato: Comodissimo garage e cantina, collegati internamente.
• Esterni: Doppia area cortilizia di pertinenza esclusiva (fronte e retro) interamente pavimentata.

Data di Vendita MARZO
Offerta Minima € 145.500,00
_____________________________________________________________
Perché Comprare in Asta?
Acquistare questo immobile in asta ti permette di accedere a un prezzo notevolmente inferiore rispetto al valore di mercato. Un'occasione da cogliere per un investimento o per la tua prima casa!
Contattaci subito per ricevere la documentazione completa (planimetria, foto e avviso d'asta) e scoprire come partecipare.
📞 Chiama ora e prenota la tua consulenza gratuita sull'Asta!
Caratteristiche principali
Codice:
ASTA6417
CittĂ :
Terracina (Borgo Hermada)
Categoria:
Villetta schiera
Locali:
8
Mq:
96,53
Mq Balcone:
10,1
mq Terrazzo:
80,16
Classe energetica:
E
Mappa
VIA DU CROS, 20 - Terracina (LT)
Planimetrie
Richiedi informazioni
Invia
Cookie preference
Chatta con il
nostro assistente h24